Médiathèque Cinq
Equipement Culturel, Saint Paul, Paris
ENSAPVS / Semestre 6 / 2020
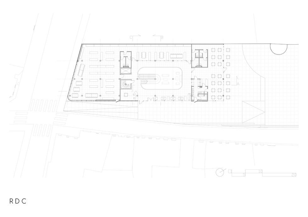
Le projet de la Médiathèque " Cinq " prend place sur un site singulier, au cœur de Paris, face au Village Saint-Paul : les vestiges de l'ancienne muraille de Philippe Auguste construite au XIIe siècle occupent l'espace et délimitent un vide entre la Seine et l'église Saint-Paul Saint-Louis. Cette muraille médiévale incarne, abrite et anime la vie du quartier, associant passé et présent. Le programme de la médiathèque "Cinq", est précisément développé autour des sens humains. Grâce aux nouvelles technologies, comme la réalité augmentée, il offrira une lecture sensible des supports abrités par la médiathèque.
Les ouvertures horizontales en toiture sont autant fonctionnelles qu’esthétiques : elles permettent une ventilation naturelle et la diffusion de la lumière dans les espaces communs, tout en cadrant les vues sur l'église Saint-Paul Saint-Louis. Les faux plafonds associés à la structure en bois lamellé déterminent ces cadres et contribuent à la diffusion de la lumière.





















